Chez Olea Habitat, nous savons qu’un projet de construction ou d’extension commence bien avant le premier coup de pelle.
La réussite d’un chantier repose d’abord sur un permis de construire solide, complet, et validé sans accroc.
Nous vous accompagnons dans toutes les étapes du dossier pour que vous puissiez avancer l’esprit tranquille.
Les démarches administratives sont souvent techniques, longues et stressantes pour les particuliers.
Nous vous proposons une prise en charge globale, de l’étude de faisabilité jusqu’au dépôt du dossier en mairie.
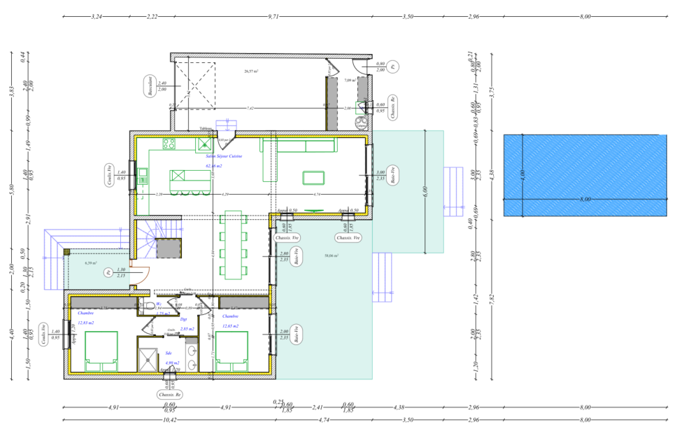
Nous analysons votre parcelle, les règles d’urbanisme locales, et les exigences techniques dès la phase amont.
Nous réunissons tous les éléments nécessaires pour garantir une validation sans aller-retour : plans, notices, insertion paysagère...
Nous restons en contact avec la mairie et vous informons de chaque étape. Vous n’avez rien à gérer.
Un permis de construire mal préparé peut faire perdre plusieurs semaines (voire mois) à un projet.
Chez Olea Habitat, notre expertise terrain et notre réseau de partenaires architectes nous permettent de constituer des dossiers sérieux, argumentés et validés rapidement.
Vous gagnez en sérénité, en clarté et en temps.
Nous réalisons vos travaux dans les départements suivants :
Gard (Les Angles, Nîmes, Bagnols-sur-Cèze…)
Vaucluse (Avignon, Orange…)
Bouches-du-Rhône (Arles, Tarascon…)
Drôme (Montélimar et alentours)
Automated page speed optimizations for fast site performance